Меню Поиск Разместить Избранное Кабинет

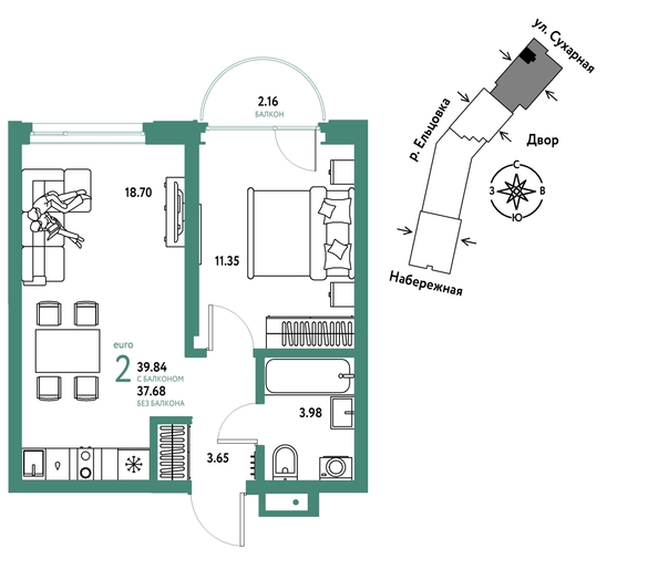
Продается 2-комн. квартира, 39.84 м²

Объявление 1034695, обнов. 01.10.25
48
9 976 471 ₽ 250 413 ₽/м²
Следить за ценой

Подписка на изменение цены

Мы сообщим вам, если цена объекта изменится
или на почту
Нажимая кнопку «Подписаться» вы соглашаетесь с политикой конфиденциальности
Купить в ипотеку:
Новостройка
Срок сдачи
4 кв 2025 — по проекту
Состояние
Возведение средних этажей
Общая площадь
39.84 м²
Площадь кухни
6.47 м²
Этаж / всего
16 / 28
Тип дома
Монолит-кирпич
Тип и серия дома
Индивидуальный проект
Санузел
Совмещенный
Балкон
1

Новая квартира в ЖК «Страна.Береговая» напрямую от федерального застройщика «‎Страна Девелопмент».Продается 2–комнатная квартира на 16 этаже от застройщика “Страна Девелопмент”. Площадь квартиры 39,84 кв. м.Жилой комплекс «Страна.Береговая» — новый флагманский проект федерального застройщика «‎Страна Девелопмент» в Новосибирске. Дом на берегу Оби с захватывающими видами из окон. Три секции разной этажности с акцентной башней-доминантой образуют камерное пространство с закрытым двором и личным зелёным садом для отдыха.ПРЕИМУЩЕСТВАСвой приватный двор, окружённый зеленью, которая будет цвести весь год. Двор с релакс-пространством, спортивной зоной с воркаут и настольным теннисом. Детская площадка из природных материалов. Двор круглосуточно находится под видеонаблюдением.Парадные с зелёным оазисом из растений. Для комфорта мы предусмотрели тёплые тамбуры, в зонах ожидания разместили мягкие диваны. Также мы добавили возможность бесключевого доступа — по распознаванию лица или считыванию BLE-ключа.Спроектирована подземная парковка на 217 машиномест. Ваш личный транспорт всегда будет под защитой и видеонаблюдением — переживать о его сохранности не придётся. Въезд в паркинг осуществляется с помощью умной камеры по госномеру либо BLE-метке. А чтобы подняться к квартире, не нужно выходить на улицу — лифты отвезут на нужный этаж. Для гостей за территорией двора предусмотрена открытая гостевая парковка.ОТДЕЛКАКвартиры сдаются с предчистовой отделкой: произведена разводка электричества и отопления, выполнена стяжка пола, стены выровнены «под маяк», установлены розетки, выключатели и радиаторы. ДИЗАЙНЕРСКАЯ ОТДЕЛКАПри покупке квартиры в ЖК «Страна.Береговая» можно включить стоимость ремонта в ипотеку. Пять вариантов на выбор: хлопковая нить, серый шторм, белый камень, шалфей, голубой вереск. Включено всё — обои, ламинат, натяжной потолок и даже кондиционер. Также для вас есть четыре варианта ремонта в ванной — акриловая ванна с экраном, смеситель с лейкой, подвесной унитаз, зеркало с подсветкой. Останется только разместить мебель! СПОСОБЫ ПОКУПКИСотрудники «Страна Девелопмент» будут сопровождать вас на каждом этапе сделки, помогут получить одобрение по ипотеке или снизить ежемесячный платеж.- ипотека- рассрочка- с использованием материнского капитала - 100% оплата наличными

Страна Девелопмент Номер объявления SD54-1034695.

Представитель застройщика Страна.Новосибирск:
Позвонить
Скажите агентству, что нашли это объявление на СИБДОМЕ
  • квартиры по цене застройщика
  • комиссия покупателя 0%
  • помощь в получении ипотеки по сниженным ставкам
  • помощь в реализации вашей недвижимости
Написать

Похожие объявления

Не можете найти нужный вариант?

Оставьте заявку на подбор объекта и мы отправим ее трем проверенным нами агентствам недвижимости. Они возьмут все вопросы поиска на себя.
Нажимая кнопку «Отправить заявку» вы соглашаетесь с политикой конфиденциальности.