Меню Поиск Разместить Избранное Кабинет

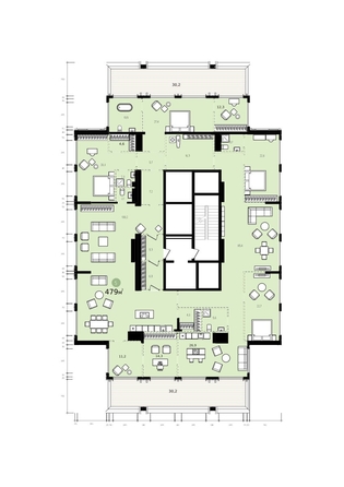
Продается 4-комн. квартира, 479 м²

Объявление 1035558, обнов. 31.10.25
58
155 000 000 ₽ 323 591 ₽/м²
Следить за ценой

Подписка на изменение цены

Мы сообщим вам, если цена объекта изменится
или на почту
Нажимая кнопку «Подписаться» вы соглашаетесь с политикой конфиденциальности
Купить в ипотеку:
Адрес
Станции метро
Речной вокзал 6 мин
Речной вокзал 6 мин
Тип жилья
новостройка
Год постройки
окт. 2024
Общая площадь
479 м²
Площадь кухни
40.12 м²
Этаж / всего
23 / 24
Тип дома
Монолит-кирпич
Тип и серия дома
Индивидуальный проект
Ремонт/отделка
Отделка под ключ от застройщика

Квартира с кухней-гостиной и четырьмя спальнями в квартале «На Декабристов». Особенности планировки: второй санузел, окно в коридоре, гардеробная, окна в пол, вид во двор, панорамное остекление, свободная планировка, разнесённые спальни, мастер-спальня, терраса на крыше.
№ квартиры в нашей базе: ДК-ГП6-1-1.23.1.
Номер объявления SD54-1035558.

Представитель застройщика Брусника:
Позвонить
Скажите агентству, что нашли это объявление на СИБДОМЕ
  • квартиры по цене застройщика
  • комиссия покупателя 0%
  • помощь в получении ипотеки по сниженным ставкам
  • помощь в реализации вашей недвижимости
Написать

Похожие объявления

Не можете найти нужный вариант?

Оставьте заявку на подбор объекта и мы отправим ее трем проверенным нами агентствам недвижимости. Они возьмут все вопросы поиска на себя.
Нажимая кнопку «Отправить заявку» вы соглашаетесь с политикой конфиденциальности.