Меню Поиск Разместить Избранное Кабинет

Продается студия, 29.1 м²

Объявление 1035645, обнов. 09.10.25
10
8 282 353 ₽ 284 617 ₽/м²
Следить за ценой

Подписка на изменение цены

Мы сообщим вам, если цена объекта изменится
или на почту
Нажимая кнопку «Подписаться» вы соглашаетесь с политикой конфиденциальности
Купить в ипотеку:
АКЦИЯ! Скидка 10%
Скидка 10% при 100% оплате или ипотеке в ЖК «Страна.Тополевая»
до 31.10.2025 Подробнее
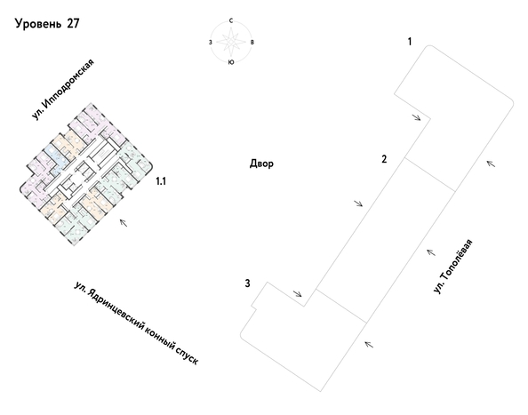
Адрес
Новостройка
Станции метро
Берёзовая роща 15 мин
Берёзовая роща 15 мин
Срок сдачи
4 кв 2027 — по проекту
Состояние
Устройство фундамента
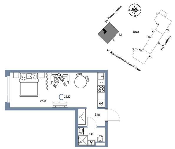
Общая площадь
29.1 м²
Площадь кухни
6.68 м²
Этаж / всего
27 / 30
Тип дома
Монолит-кирпич
Тип и серия дома
Индивидуальный проект
Санузел
Раздельный
Балкон
1

Новая квартира в ЖК «Страна.Тополёвая» напрямую от федерального застройщика «‎Страна Девелопмент».

Продается 1–комнатная квартира на 27 этаже от застройщика “Страна Девелопмент”. Площадь квартиры 29,1 кв. м.

Жилой комплекс «Страна.Тополёвая» — новый проект федерального застройщика «‎Страна Девелопмент» в Новосибирске. Он раскинется в 20 минутах ходьбы
от центра.

ПРЕИМУЩЕСТВА
• Удачная локация. Оцените все преимущества жизни на Ипподромской улице, которая считается главной городской артерией, связывающей между собой Октябрьский, Центральный и Калининский районы.
• Приватный двор. Для юных жителей предусмотрены игровые площадки с разделением по возрасту. Особого внимания заслуживает озеленение дворовой территории. Различные виды деревьев, кустарники и цветущие многолетники создают у дома атмосферу вечнозелёного парка.
• Подземный паркинг. Территория жилого квартала будет свободна от автомобилей. Предусмотрен охраняемый подземный паркинг на 178 машино-мест. О сохранности транспорта можно не беспокоиться — здесь предусмотрено видеонаблюдение и доступ по считыванию номеров или BLE-метке.

ОТДЕЛКА
Квартиры сдаются с предчистовой отделкой: произведена разводка электричества и отопления, выполнена стяжка пола, стены выровнены «под маяк», установлены розетки, выключатели и радиаторы.

ДИЗАЙНЕРСКАЯ ОТДЕЛКА
При покупке квартиры в ЖК «Страна.Тополёвая» можно включить стоимость ремонта в ипотеку. Пять вариантов на выбор: хлопковая нить, серый шторм, белый камень, шалфей, голубой вереск. Включено всё — обои, ламинат, натяжной потолок и даже кондиционер. Также для вас есть четыре варианта ремонта в ванной — акриловая ванна с экраном, смеситель с лейкой, подвесной унитаз, зеркало с подсветкой. Останется только разместить мебель!

СПОСОБЫ ПОКУПКИ
- ипотека
- рассрочка
- с использованием материнского капитала
- 100% оплата наличными

Сотрудники «Страна Девелопмент» будут сопровождать вас на каждом этапе сделки, помогут получить одобрение по ипотеке или снизить ежемесячный платеж. Номер объявления SD54-1035645.

Представитель застройщика Страна.Новосибирск:
Позвонить
Скажите агентству, что нашли это объявление на СИБДОМЕ
  • квартиры по цене застройщика
  • комиссия покупателя 0%
  • помощь в получении ипотеки по сниженным ставкам
  • помощь в реализации вашей недвижимости
Написать

Похожие объявления