Меню Поиск Разместить Избранное Кабинет

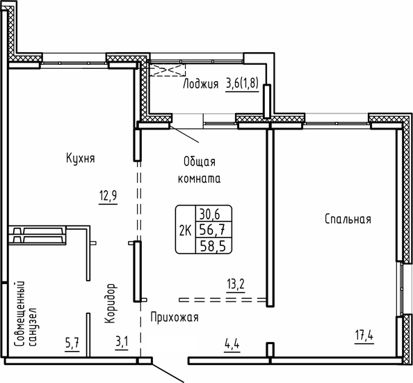
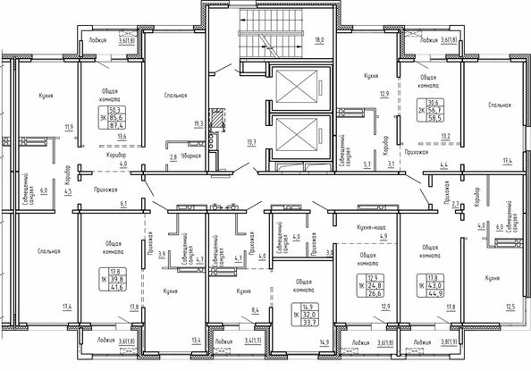
Продается 2-комн. квартира, 58.5 м²

Объявление 1036409, обнов. 17.10.25
10
6 600 000 ₽ 112 821 ₽/м²
Следить за ценой

Подписка на изменение цены

Мы сообщим вам, если цена объекта изменится
или на почту
Нажимая кнопку «Подписаться» вы соглашаетесь с политикой конфиденциальности
Купить в ипотеку:
АКЦИЯ! Приведи друга
Рекомендуй «Союз» и получай вознаграждение!
до 31.12.2025 Подробнее
Адрес
Срок сдачи
2 кв 2026 — по проекту
Состояние
Отделочные работы
Застройщик
СОЮЗ
Общая площадь
58.5 м²
Этаж / всего
13 / 17
Тип дома
Монолитный
Тип и серия дома
Новой планировки

Жилой комплекс «Самоцветы» - это объединенная территория закрытых дворов на 11,2 Га. В проект входят 17 жилых домов, школа, детский сад, стоянки открытого типа и многоуровневый гаражный бокс.
Жилой комплекс «Самоцветы» — это уникальный подход планирования дворовой территории и концептуально - новое пространство. В ЖК «Самоцветы» запроектированы коммерческие помещения: под кафе, рестораны, супермаркеты, магазины и медицинские центры. Каждая очередь строительства ЖК «Самоцветы» имеет свое уникальное название в честь горных пород России.
Жилой комплекс «Самоцветы» расположен по улице «Большая», Ленинского района, города Новосибирска. Вблизи жилого комплекса расположены кафе, продуктовые и строительные магазины, аптеки, а также торговый центр в котором находятся – крупный продуктовый магазин, салоны красоты, сервисные центры и др. А в радиусе 2х км расположились тренажерные залы и большое обилие магазинов способных закрыть любые потребности.
Номер объявления SD54-1036409.

СОЮЗ
По вопросам покупки обращаться:
Позвонить
Скажите застройщику, что нашли это объявление на СИБДОМЕ
Написать

Похожие объявления