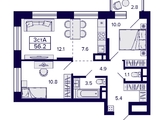
«CITATUM» - жилой комплекс, состоящий из трех симметричных башен с усложненными рельефными фасадами (23, 8, 23 этажей), с единым пространством-стилобатом, в котором расположится просторное дизайнерское лобби с консьержем и мягкой зоной ожидания.
Обмен квартиры от VIRA.
Примем вашу квартиру в счёт стоимости новой.
После получения заявки на обмен мы совершим бесплатную оценку стоимости вашей старой квартиры.
▪ Вы получите комплексное коммерческое предложение, с четким описанием всех преимуществ и справедливой ценой выкупа.
▪ Подбираем новую квартиру в одном из наших проектов и фиксируем ее стоимость.
▪ Стоимость старой квартиры автоматически вносится в счет новой.
▪ По вашему желанию оставляем до 10% или до 1 000 000 рублей от стоимости старой квартиры в личное использование.
▪ Если старая квартира в ипотеке, берем ее гашение на себя.
В чем преимущества Обмена от VIRA?
✅ Выкуп и продажа квартиры – в режиме одного окна
✅ Короткий срок выхода на сделку
✅ Дополнительная скидка на приобретаемую квартиру
✅ Экономия комиссии за продажу старой квартиры
ООО СЗ «ВИРА на Грибоедова» Номер объявления SD54-1037716.
