Меню Поиск Разместить Избранное Кабинет

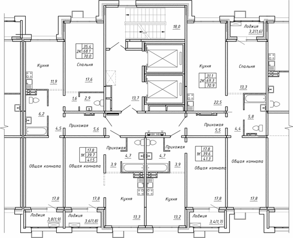
Продается 1-комн. квартира, 41.3 м²

Объявление 1038107, обнов. 04.11.25
1
5 470 000 ₽ 132 446 ₽/м²
Следить за ценой

Подписка на изменение цены

Мы сообщим вам, если цена объекта изменится
или на почту
Нажимая кнопку «Подписаться» вы соглашаетесь с политикой конфиденциальности
Купить в ипотеку:
АКЦИЯ! Приведи друга
Рекомендуй «Союз» и получай вознаграждение!
до 31.12.2025 Подробнее
Адрес
Срок сдачи
3 кв 2026 — по проекту
Состояние
Возведение средних этажей
Застройщик
СОЮЗ
Общая площадь
41.3 м²
Этаж / всего
3 / 15
Тип дома
Монолитный
Тип и серия дома
Новой планировки

Жилой комплекс «Гренландия» — новый стандарт в Новосибирске, где архитектура, природа и комфорт сочетаются. Вдохновлённый Гренландией, проект предлагает скандинавский стиль жизни: простоту, минимализм, гармонию с природой.
Что делает «Гренландию» особенной:

Архитектура в стиле «чистой архитектуры»: строгие линии, большие окна, натуральные материалы.
Функциональные смарт-планировки: просторные кухни-гостиные, рациональные спальни, большие гардеробные.
Ландшафтный дизайн с хвойными деревьями, каменными горками, зонами для отдыха и спорта.
Безопасность: закрытые дворы, видеонаблюдение, многоуровневые парковки.
Инфраструктура: школа, детские сады, магазины, кафе, медицинские и образовательные центры.

Ценности комплекса:

Свобода: смарт-планировки, открытые дворы без машин.
Гармония с природой: натуральные материалы, зелёные насаждения.
Осознанность: отказ от лишнего, продуманность каждого элемента.
Уважение к человеку: забота о комфорте и безопасности.
Эстетика простоты: чистые линии, натуральные оттенки.

Типы квартир:

Черновая отделка.
White box.
Готовый ремонт в скандинавском стиле.

Планировки квартир продуманы для максимального комфорта: кухни-гостиные, спальни, гардеробные, панорамные окна.

Безопасность: закрытые дворы, видеонаблюдение, многоуровневые парковки.

На территории ЖК создаётся полноценная экосистема для жизни и отдыха.
Номер объявления SD54-1038107.

СОЮЗ
По вопросам покупки обращаться:
Позвонить
Скажите застройщику, что нашли это объявление на СИБДОМЕ
Написать

Похожие объявления

Не можете найти нужный вариант?

Оставьте заявку на подбор объекта и мы отправим ее трем проверенным нами агентствам недвижимости. Они возьмут все вопросы поиска на себя.
Нажимая кнопку «Отправить заявку» вы соглашаетесь с политикой конфиденциальности.