Меню Поиск Разместить Избранное Кабинет

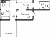
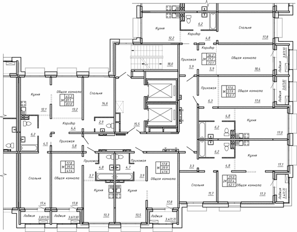
Продается 3-комн. квартира, 83 м²

Объявление 1038188, обнов. 05.11.25
12
11 154 000 ₽ 134 386 ₽/м²
Следить за ценой

Подписка на изменение цены

Мы сообщим вам, если цена объекта изменится
или на почту
Нажимая кнопку «Подписаться» вы соглашаетесь с политикой конфиденциальности
Купить в ипотеку:
АКЦИЯ! Приведи друга
Рекомендуй «Союз» и получай вознаграждение!
до 31.12.2025 Подробнее
Адрес
Новосибирск, Калининский р-н, ул. Тюленина, кв. 204
Срок сдачи
3 кв 2026 — по проекту
Состояние
Возведение средних этажей
Застройщик
СОЮЗ
Общая площадь
83 м²
Этаж / всего
2, 3 / 15
Тип дома
Монолитный
Тип и серия дома
Новой планировки
Ремонт/отделка
Отделка под ключ от застройщика

**Жилой комплекс «Гренландия»** — новый стандарт в Новосибирске, где архитектура, природа и комфорт сочетаются. Вдохновлённый Гренландией, проект предлагает скандинавский стиль жизни: простоту, минимализм, гармонию с природой.

**Что делает «Гренландию» особенной:**

- Архитектура в стиле «чистой архитектуры»: строгие линии, большие окна, натуральные материалы.
- Функциональные смарт-планировки: просторные кухни-гостиные, рациональные спальни, большие гардеробные.
- Ландшафтный дизайн с хвойными деревьями, каменными горками, зонами для отдыха и спорта.
- Безопасность: закрытые дворы, видеонаблюдение, многоуровневые парковки.
- Инфраструктура: школа, детские сады, магазины, кафе, медицинские и образовательные центры.

**Ценности комплекса:**

- Свобода: смарт-планировки, открытые дворы без машин.
- Гармония с природой: натуральные материалы, зелёные насаждения.
- Осознанность: отказ от лишнего, продуманность каждого элемента.
- Уважение к человеку: забота о комфорте и безопасности.
- Эстетика простоты: чистые линии, натуральные оттенки.

**Типы квартир:**

- Черновая отделка.
- White box.
- Готовый ремонт в скандинавском стиле.

**Планировки квартир** продуманы для максимального комфорта: кухни-гостиные, спальни, гардеробные, панорамные окна.
**Безопасность:** закрытые дворы, видеонаблюдение, многоуровневые парковки.
На территории ЖК создаётся полноценная экосистема для жизни и отдыха.

ООО "СЗ Союз-Инвест" Номер объявления SD54-1038188.

СОЮЗ
По вопросам покупки обращаться:
Позвонить
Скажите застройщику, что нашли это объявление на СИБДОМЕ
Написать

Похожие объявления

Не можете найти нужный вариант?

Оставьте заявку на подбор объекта и мы отправим ее трем проверенным нами агентствам недвижимости. Они возьмут все вопросы поиска на себя.
Нажимая кнопку «Отправить заявку» вы соглашаетесь с политикой конфиденциальности.